Tối Ưu Với Phòng Tắm Theo Chiều Dọc hoặc Ngang
Nếu diện tích nhà rộng thì có lẽ bạn không cần băn khoăn khi bố trí phòng tắm gồm 3 khu chức năng chính: rửa tay/mặt, vệ sinh và tắm. Tuy nhiên khi nhà bạn chỉ có một diện tích hạn chế và muốn có đủ chức năng trên tại phòng tắm gia đình thì phương án tối ưu và hiệu quả là bố trí phòng tắm theo chiều dọc hoặc ngang. Bạn sẽ tìm thấy những nguyên tắc cơ bản và sơ đồ bố trí điển hình cho dạng phòng tắm như vậy trong bài viết này.

Nguyên Tắc Mở Rộng Không Gian
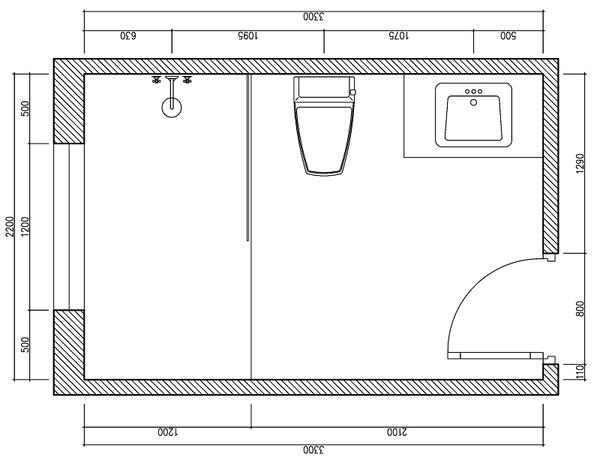
Phòng tắm khi đặt theo chiều dọc hoặc ngang và diện tích giới hạn luôn khiến người sử dụng có cảm giác hẹp, thiếu ánh sáng do...
Nếu diện tích nhà rộng thì có lẽ bạn không cần băn khoăn khi bố trí phòng tắm gồm 3 khu chức năng chính: rửa tay/mặt, vệ sinh và tắm. Tuy nhiên khi nhà bạn chỉ có một diện tích hạn chế và muốn có đủ chức năng trên tại phòng tắm gia đình thì phương án tối ưu và hiệu quả là bố trí phòng tắm theo chiều dọc hoặc ngang. Bạn sẽ tìm thấy những nguyên tắc cơ bản và sơ đồ bố trí điển hình cho dạng phòng tắm như vậy trong bài viết này.

Nguyên Tắc Mở Rộng Không Gian
Phòng tắm khi đặt theo chiều dọc hoặc ngang và diện tích giới hạn luôn khiến người sử dụng có cảm giác hẹp, thiếu ánh sáng do vậy để tạo không gian liên tục và có cảm giác rộng rãi thì:








Bài viết bởi Nguyễn Thị Huyền Trang
Marketing Truyền Thông – Prime Group